Casa indipendente in vendita

Cenate Sopra, V. Sant'Ambrogio
€ 95.000
5 locali 5 locali
246 Mq 246 Mq
1 bagno 1 bagno

Casa indipendente in vendita

Cenate Sopra, V. Sant'Ambrogio

Descrizione annuncio

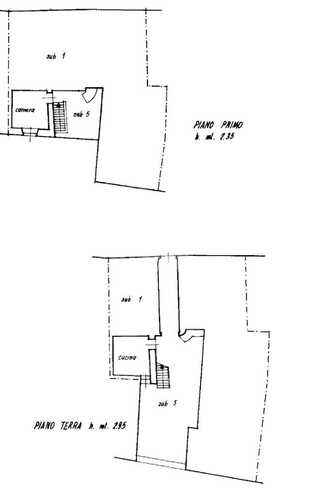
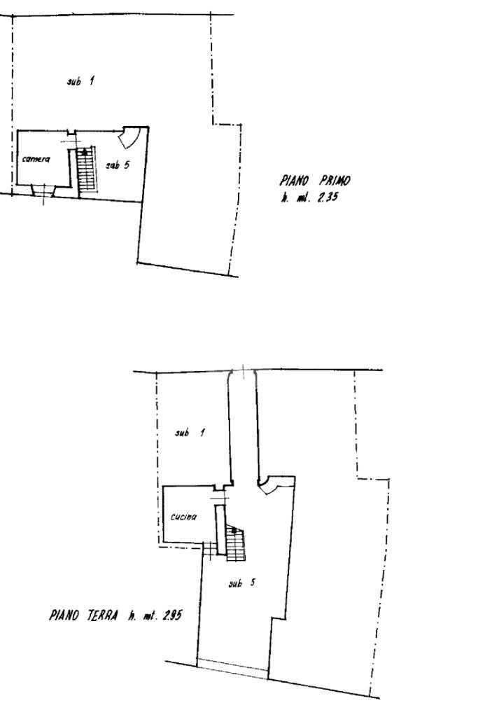
Proponiamo in vendita un appartamento privo di spese condominiali, situato in un contesto tranquillo e riservato, ideale per chi desidera indipendenza e costi di gestione ridotti. L’abitazione si sviluppa su ambienti ben distribuiti e curati, offrendo comfort e funzionalità in ogni spazio.

L’ingresso conduce a un soggiorno accogliente e luminoso, perfetto per momenti di relax o per ospitare amici e familiari. La cucina,ben organizzata, permette di dedicarsi alla preparazione dei pasti con praticità, mantenendo gli ambienti distinti.

La zona notte comprende una camera da letto matrimoniale dalle generose dimensioni, che assicura tranquillità e privacy. Il bagno, finestrato e dotato dei principali comfort, completa il piano abitativo.

A disposizione dell’immobile vi sono inoltre una cantina, ideale come deposito o spazio per hobby, e un comodo ripostiglio perfetto per mantenere la casa sempre in ordine. La proprietà include anche una soffitta, utile come ulteriore area di stoccaggio o potenziale ambiente jolly da personalizzare in base alle esigenze.

Soluzione interessante per chi cerca un’abitazione da ristrutturare, senza costi condominiali.

Mostra tutto

Nelle vicinanze

Ricariche auto elettriche Ricariche auto elettriche
Municipio di Trescore Balneario | RESSOLAR
2,7 Km
Scuole Scuole
Scuola Media
2,1 Km
Scuola Primaria
2,4 Km
Farmacia Farmacia
Farmacia Regina Pacis
3,0 Km
Ospedali Ospedali
Ospedali
3,0 Km
Negozi Negozi
Panificio Poloni
1,0 Km
Negozi
2,5 Km
Supermercati Sisa
2,6 Km
Bar Bar
Nonsolopane
930 m
Centro del Sorriso
950 m
astoria
2,5 Km
Bar Tiro a Segno
2,6 Km
Ristoranti Ristoranti
Azienda Agricola Tenuta Maria
310 m
Pizzeria Le Piramidi 2
890 m
Pizzeria da Edo
930 m
Ristorante Sette Ponti
1,3 Km
Ristorante La Baracca
1,7 Km
Mostra tutto

Caratteristiche

Rif.:
61148789
Piano:
1 di 2 (Piano su più livelli)
Terrazzi:
1
Camere da letto:
1
Arredamento:
Assente
Condizionamento:
Assente
Mostra tutto
Prezzo Prezzo
€ 95.000
Rata mutuo Rata mutuo
€ 448 / mese
Spese annue Spese annue
€ 0
Proponi il tuo prezzoProponi il tuo prezzo
Immobile valutato con T·Valuta

Classe Energetica

G
G
G
G
G
G
G
G
G
EP globale non rinnovabile:
244.65 kW h/m² anno
EP globale rinnovabile:
123.12 kW h/m² anno
EP invernale del fabbricato:
EP estiva del fabbricato:
Anno di costruzione:
1900
Riscaldamento:
Autonomo
Tipo impianto:
A radiatori
Tipo alimentazione:
Metano

Ti interessa visionare l'immobile?

Fissa un appuntamento  Fissa un appuntamento

Richiedi informazioni

Clicca su Leggi per aprire l'informativa
* Questi campi sono obbligatori

Calcola il tuo mutuo

Semplice e senza impegno
Anticipo

( % )
Mutuo

( % )

pochi semplici passi

inserisci i tuoi dati
Questionario completato
Grazie per aver richiesto un appuntamento senza impegno con un nostro Consulente del Credito e Assicurativo.

Hai inserito correttamente tutti i dati necessari e a breve riceverai una e-mail con un link da convalidare per inviare i tuoi dati.
Affiliato
Agenzia Imm.re La Dea Srl
Via Ospedale, 1 24069 Trescore Balneario (BG)

Il nostro staff


  • Giulia Brolis
    Affiliata

  • Chiara Catanzariti
    Collaboratrice

  • Elisa Lorenzi
    Coordinatrice

  • Sofia Montani
    Collaboratrice

  • Irene Pezzali
    Collaboratrice
Via Ospedale, 1 24069 Trescore Balneario (BG)
Zona: Trescore Balneario-Cenate Sotto-Cenate Sopra
Mostra su mappa
Affiliato
Agenzia Imm.re La Dea Srl
Via Ospedale, 1 24069 Trescore Balneario (BG)

2026 Tecnocasa Franchising S.p.A. - P. IVA 08365160152 - Via Monte Bianco 60/A 20089 Rozzano (MI). Ogni agenzia ha un proprio titolare ed è autonoma. Privacy policy | Policy utilizzo | Cookie policy