Trilocale in vendita

Trescore Balneario, Via San Cassiano
€ 150.000
3 locali 3 locali
70 Mq 70 Mq
1 bagno 1 bagno

Trilocale in vendita

Trescore Balneario, Via San Cassiano

Descrizione annuncio

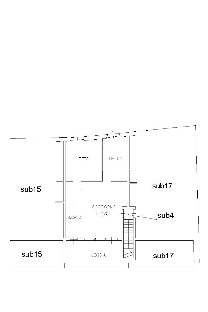
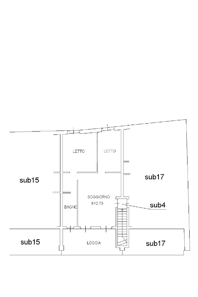
Proponiamo in vendita trilocale situato a Trescore Balneario, in una zona tranquilla e residenziale, comoda a tutti i principali servizi.

L’appartamento si apre su una zona giorno luminosa e accogliente, con cucina e soggiorno in un unico ambiente, ideale per vivere la quotidianità in modo pratico e funzionale. Da qui si accede alla terrazza abitabile, perfetta per pranzi all’aperto, momenti di relax o per godere di uno spazio esterno vivibile in ogni stagione.

La zona notte è composta da due camere da letto, ben dimensionate e facilmente arredabili, adatte sia come camere matrimoniali, singole o studio. Completa l’abitazione un bagno funzionale, ben distribuito.

A completare la proprietà troviamo un box auto e un posto auto, che garantiscono comodità e praticità.

La soluzione si inserisce in un contesto ordinato e riservato, pur rimanendo vicina ai servizi, alle scuole e alle principali vie di collegamento, rappresentando un’ottima opportunità per chi cerca comfort e tranquillità a Trescore Balneario

Mostra tutto

Nelle vicinanze

Trasporto pubblico Trasporto pubblico
Montello-Gorlago
Montello-Gorlago
2,5 Km
Ricariche auto elettriche Ricariche auto elettriche
Municipio di Trescore Balneario | RESSOLAR
1,3 Km
Scuole Scuole
Scuole
500 m
Scuole
1,2 Km
Scuola Primaria
1,6 Km
Scuola Media
1,7 Km
Scuola Dell'Infanzia Beato Giovanni XXIII
2,8 Km
Farmacia Farmacia
Farmacia Regina Pacis
920 m
Farmacia Poma Della Dr.Ssa Simona Poma & C.
1,5 Km
Farmacia
3,0 Km
Ospedali Ospedali
Ospedali
980 m
Supermercati Supermercati
Supermercati
2,9 Km
Negozi Negozi
Negozi
1,3 Km
Panificio Poloni
2,8 Km
Supermercati Sisa
2,9 Km
Bar Bar
Bar
2,5 Km
Bar Tiro a Segno
2,9 Km
astoria
2,9 Km
Ristoranti Ristoranti
Ristoranti
760 m
Molino dei Frati
850 m
LoRo&Co
990 m
Villa Canton
1,8 Km
Ristorante Sette Ponti
2,4 Km
Mostra tutto

Caratteristiche

Rif.:
61168655
Piano:
1 di 2 (Piano medio)
Box:
1
Posti auto:
1
Terrazzi:
1
Camere da letto:
2
Mostra tutto
Prezzo Prezzo
€ 150.000
Rata mutuo Rata mutuo
€ 696 / mese
Spese annue Spese annue
€ 500
Proponi il tuo prezzoProponi il tuo prezzo

Classe Energetica

G
G
G
G
G
G
G
G
G
EP globale non rinnovabile:
156.00 kW h/m² anno
EP globale rinnovabile:
2.71 kW h/m² anno
EP invernale del fabbricato:
EP estiva del fabbricato:
Anno di costruzione:
2005
Riscaldamento:
Autonomo
Tipo impianto:
A radiatori
Tipo alimentazione:
Metano

Ti interessa visionare l'immobile?

Fissa un appuntamento  Fissa un appuntamento

Richiedi informazioni

Clicca su Leggi per aprire l'informativa
* Questi campi sono obbligatori

Calcola il tuo mutuo

Semplice e senza impegno
Anticipo

( % )
Mutuo

( % )

pochi semplici passi

inserisci i tuoi dati
Questionario completato
Grazie per aver richiesto un appuntamento senza impegno con un nostro Consulente del Credito e Assicurativo.

Hai inserito correttamente tutti i dati necessari e a breve riceverai una e-mail con un link da convalidare per inviare i tuoi dati.
Affiliato
Agenzia Imm.re La Dea Srl
Via Ospedale, 1 24069 Trescore Balneario (BG)

Il nostro staff


  • Giulia Brolis
    Affiliata

  • Chiara Catanzariti
    Collaboratrice

  • Elisa Lorenzi
    Coordinatrice

  • Sofia Montani
    Collaboratrice

  • Irene Pezzali
    Collaboratrice
Via Ospedale, 1 24069 Trescore Balneario (BG)
Zona: Trescore Balneario-Cenate Sotto-Cenate Sopra
Mostra su mappa
Affiliato
Agenzia Imm.re La Dea Srl
Via Ospedale, 1 24069 Trescore Balneario (BG)

2026 Tecnocasa Franchising S.p.A. - P. IVA 08365160152 - Via Monte Bianco 60/A 20089 Rozzano (MI). Ogni agenzia ha un proprio titolare ed è autonoma. Privacy policy | Policy utilizzo | Cookie policy