Casa semindipendente in vendita

Trescore Balneario, Via muratello
€ 209.000
Prezzo aggiornato
3 locali 3 locali
279 Mq 279 Mq
2 bagni 2 bagni

Casa semindipendente in vendita

Trescore Balneario, Via muratello

Descrizione annuncio

Immersa in un contesto naturale che regala quiete e armonia, questa casa semi-indipendente si distingue per la sua struttura funzionale e per la presenza di spazi interni ed esterni ben distribuiti, pensati per offrire comfort e vivibilità in ogni momento della giornata.

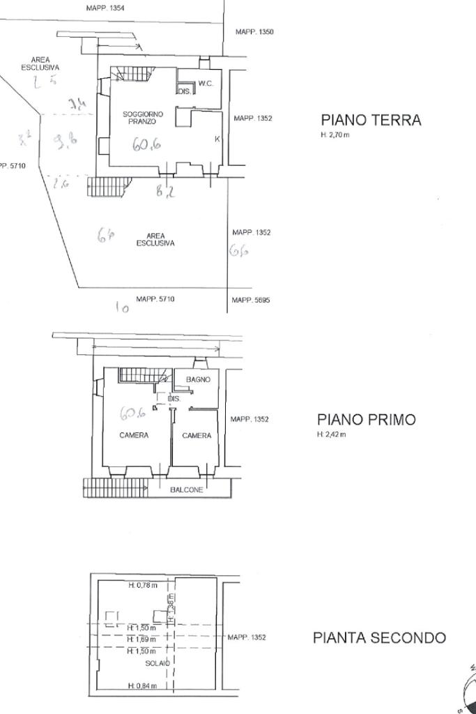
Al piano terra si viene accolti da un soggiorno, luminoso e accogliente, cuore pulsante della casa, affiancato da una cucina ideale per chi ama cucinare e condividere i pasti in famiglia.

Un disimpegno conduce al primo bagno finestrato di servizio con doccia. Esternamente troviamo l'area esclusiva, perfetta per pranzi all’aperto, momenti di relax o per vivere la natura circostante in totale privacy.

Al primo piano si sviluppa la zona notte, composta da due camere matrimoniali di generose dimensioni, spaziose e facilmente arredabili, oltre a un secondo bagno ben rifinito. Il livello è completato da un balcone, che regala respiro e luce agli ambienti interni offrendo una vista mozzafiato.

All'ultimo piano troviamo un ampio solaio che può essere utilizzato come deposito, locale hobby o per la realizzazione di un ambiente aggiuntivo a seconda delle esigenze.

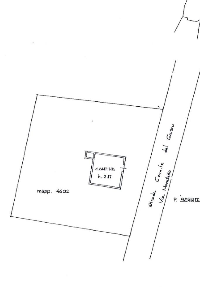
A completare la soluzione una cantina, utile e funzionale, perfetta come locale di servizio o deposito attrezzi. L’immobile è inoltre dotato di una scala esterna indipendente, che garantisce ulteriore praticità e accessibilità.

Questa abitazione, solida e accogliente, rappresenta la soluzione ideale per chi cerca una casa capace di unire funzionalità, spazi e contatto diretto con la natura, recentemente ristrutturata.

Una proposta rara che combina il fascino della tranquillità con la comodità degli ambienti ben organizzati, adatta a famiglie e a chi desidera vivere in un contesto sereno ma al tempo stesso comodo ai servizi.

Compreso nel prezzo circa 7000mq di terreno agricolo.

Mostra tutto

Nelle vicinanze

Ricariche auto elettriche Ricariche auto elettriche
Municipio di Trescore Balneario | RESSOLAR
1,1 Km
Scuole Scuole
Scuola Media
1,1 Km
Scuola Primaria
1,4 Km
Scuole
1,8 Km
Farmacia Farmacia
Farmacia Regina Pacis
1,7 Km
Farmacia Poma Della Dr.Ssa Simona Poma & C.
2,0 Km
Ospedali Ospedali
Ospedali
1,4 Km
Negozi Negozi
Negozi
940 m
Panificio Poloni
1,1 Km
Supermercati Sisa
1,7 Km
Bar Bar
Nonsolopane
1,4 Km
Centro del Sorriso
1,4 Km
astoria
1,7 Km
Bar Tiro a Segno
1,7 Km
Ristoranti Ristoranti
Villa Canton
540 m
Ristorante Sette Ponti
680 m
LoRo&Co
1,2 Km
Pizzeria da Edo
1,3 Km
Pizzeria Le Piramidi 2
1,4 Km
Mostra tutto

Caratteristiche

Rif.:
61107384
Piano:
2 di 2 (Piano su più livelli)
Posti auto:
1
Balconi:
1
Camere da letto:
2
Arredamento:
Completo
Mostra tutto
Prezzo Prezzo
€ 209.000
Rata mutuo Rata mutuo
€ 970 / mese
Spese annue Spese annue
€ 0
Proponi il tuo prezzoProponi il tuo prezzo
Immobile valutato con T·Valuta

Classe Energetica

F
F
F
F
F
F
F
F
F
EP globale non rinnovabile:
167.68 kW h/m² anno
EP globale rinnovabile:
2.71 kW h/m² anno
EP invernale del fabbricato:
EP estiva del fabbricato:
Anno di costruzione:
1960
Riscaldamento:
Autonomo
Tipo impianto:
A radiatori
Tipo alimentazione:
Altro

Prezzo ridotto di €1 (5%%)

Ti interessa visionare l'immobile?

Fissa un appuntamento  Fissa un appuntamento

Richiedi informazioni

Clicca su Leggi per aprire l'informativa
* Questi campi sono obbligatori

Calcola il tuo mutuo

Semplice e senza impegno
Anticipo

( % )
Mutuo

( % )

pochi semplici passi

inserisci i tuoi dati
Questionario completato
Grazie per aver richiesto un appuntamento senza impegno con un nostro Consulente del Credito e Assicurativo.

Hai inserito correttamente tutti i dati necessari e a breve riceverai una e-mail con un link da convalidare per inviare i tuoi dati.
Affiliato
Agenzia Imm.re La Dea Srl
Via Ospedale, 1 24069 Trescore Balneario (BG)

Il nostro staff


  • Giulia Brolis
    Affiliata

  • Chiara Catanzariti
    Collaboratrice

  • Elisa Lorenzi
    Coordinatrice

  • Sofia Montani
    Collaboratrice

  • Irene Pezzali
    Collaboratrice
Via Ospedale, 1 24069 Trescore Balneario (BG)
Zona: Trescore Balneario-Cenate Sotto-Cenate Sopra
Mostra su mappa
Affiliato
Agenzia Imm.re La Dea Srl
Via Ospedale, 1 24069 Trescore Balneario (BG)

2026 Tecnocasa Franchising S.p.A. - P. IVA 08365160152 - Via Monte Bianco 60/A 20089 Rozzano (MI). Ogni agenzia ha un proprio titolare ed è autonoma. Privacy policy | Policy utilizzo | Cookie policy