Casa indipendente in vendita

Trescore Balneario, Via Gaetano Donizetti
€ 145.000
3 locali 3 locali
170 Mq 170 Mq
1 bagno 1 bagno

Casa indipendente in vendita

Trescore Balneario, Via Gaetano Donizetti

Descrizione annuncio

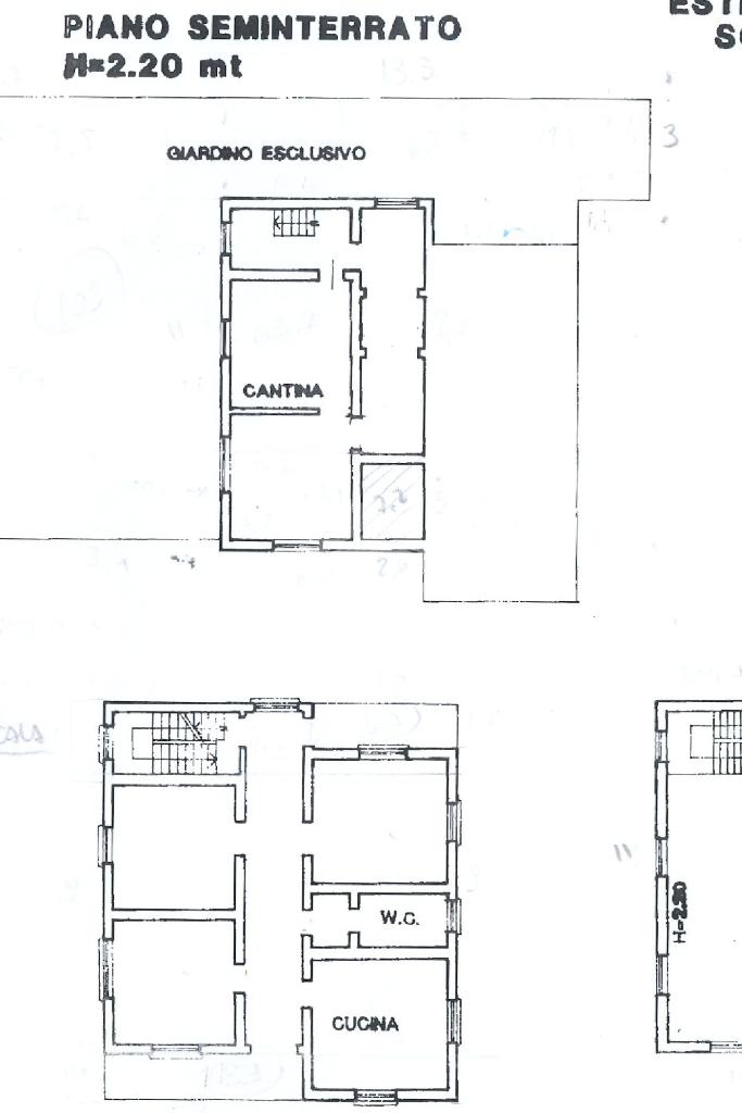
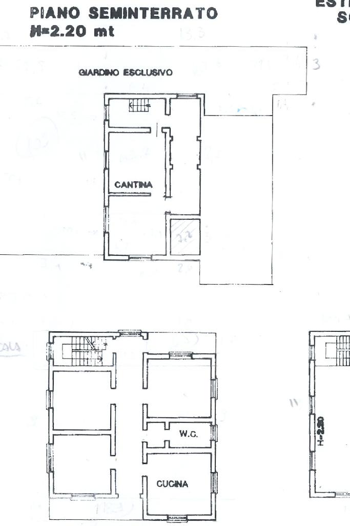
In zona residenziale tranquilla ma comoda a tutti i servizi, proponiamo in vendita luminoso trilocale con giardino privato, box e sottotetto, situato a pochi passi dal centro di Trescore Balneario.

L’appartamento, è composto da soggiorno , cucina separata e abitabile, due camere da letto, bagno finestrato e due balconi.
Al piano superiore è presente un ampio sottotetto utilizzabile come locale accessorio, studio o zona hobby.

La proprietà comprende inoltre un comodo box auto e un giardino privato perfetto per godere di momenti di relax all’aperto.

Dotazioni: riscaldamento autonomo, infissi in doppio vetro, ottima esposizione solare e contesto residenziale tranquillo.
Posizione strategica, a pochi minuti da scuole, negozi, fermate bus e terme di Trescore.

Mostra tutto

Nelle vicinanze

Ricariche auto elettriche Ricariche auto elettriche
Municipio di Trescore Balneario | RESSOLAR
550 m
Scuole Scuole
Scuole
750 m
Scuola Media
1,0 Km
Scuola Primaria
1,1 Km
Scuole
2,1 Km
Farmacia Farmacia
Farmacia Regina Pacis
830 m
Farmacia Poma Della Dr.Ssa Simona Poma & C.
1,3 Km
Ospedali Ospedali
Ospedali
490 m
Negozi Negozi
Negozi
430 m
Panificio Poloni
2,0 Km
Supermercati Sisa
2,1 Km
Bar Bar
Bar Tiro a Segno
2,1 Km
astoria
2,1 Km
Nonsolopane
2,3 Km
Centro del Sorriso
2,3 Km
Ristoranti Ristoranti
LoRo&Co
210 m
Ristoranti
750 m
Villa Canton
860 m
Molino dei Frati
950 m
Ristorante Sette Ponti
1,5 Km
Mostra tutto

Caratteristiche

Rif.:
61135522
Piano:
1 di 2 (ultimo Piano)
Box:
1
Terrazzi:
2
Camere da letto:
2
Arredamento:
Assente
Mostra tutto
Prezzo Prezzo
€ 145.000
Rata mutuo Rata mutuo
€ 683 / mese
Spese annue Spese annue
€ 0
Proponi il tuo prezzoProponi il tuo prezzo

Classe Energetica

G
G
G
G
G
G
G
G
G
EP globale non rinnovabile:
15.50 kW h/m² anno
EP globale rinnovabile:
156.00 kW h/m² anno
EP invernale del fabbricato:
EP estiva del fabbricato:
Anno di costruzione:
1960
Riscaldamento:
Autonomo
Tipo impianto:
A radiatori
Tipo alimentazione:
Metano

Ti interessa visionare l'immobile?

Fissa un appuntamento  Fissa un appuntamento

Richiedi informazioni

Clicca su Leggi per aprire l'informativa
* Questi campi sono obbligatori

Calcola il tuo mutuo

Semplice e senza impegno
Anticipo

( % )
Mutuo

( % )

pochi semplici passi

inserisci i tuoi dati
Questionario completato
Grazie per aver richiesto un appuntamento senza impegno con un nostro Consulente del Credito e Assicurativo.

Hai inserito correttamente tutti i dati necessari e a breve riceverai una e-mail con un link da convalidare per inviare i tuoi dati.
Affiliato
Agenzia Imm.re La Dea Srl
Via Ospedale, 1 24069 Trescore Balneario (BG)

Il nostro staff


  • Giulia Brolis
    Affiliata

  • Chiara Catanzariti
    Collaboratrice

  • Elisa Lorenzi
    Coordinatrice

  • Sofia Montani
    Collaboratrice

  • Irene Pezzali
    Collaboratrice
Via Ospedale, 1 24069 Trescore Balneario (BG)
Zona: Trescore Balneario-Cenate Sotto-Cenate Sopra
Mostra su mappa
Affiliato
Agenzia Imm.re La Dea Srl
Via Ospedale, 1 24069 Trescore Balneario (BG)

2026 Tecnocasa Franchising S.p.A. - P. IVA 08365160152 - Via Monte Bianco 60/A 20089 Rozzano (MI). Ogni agenzia ha un proprio titolare ed è autonoma. Privacy policy | Policy utilizzo | Cookie policy