Villa a schiera in vendita

Trescore Balneario, Via Giacomo Matteotti
€ 359.000
4 locali 4 locali
184 Mq 184 Mq
2 bagni 2 bagni

Villa a schiera in vendita

Trescore Balneario, Via Giacomo Matteotti

Descrizione annuncio

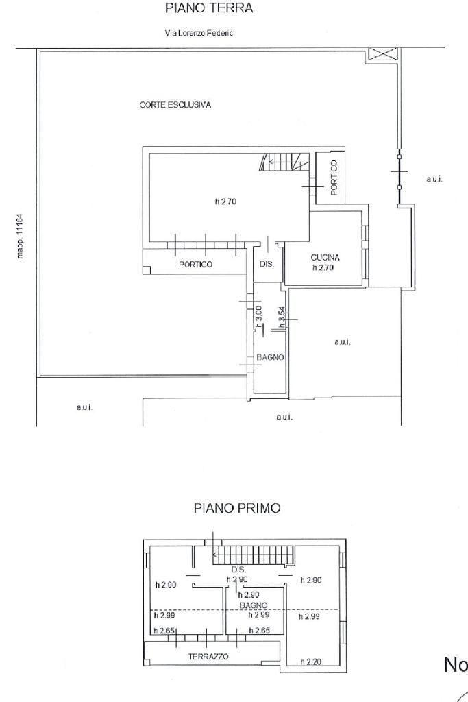
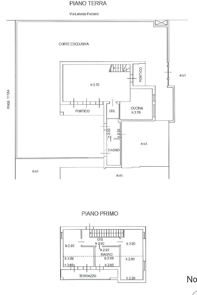
In un contesto residenziale riservato e ben servito, disposta su due livelli e completamente ristrutturata nel 2024, con particolare attenzione alla qualità delle finiture e all’efficienza energetica.

L’ingresso si apre su un’ampia zona giorno, caratterizzata da spazi luminosi e accoglienti, dove il soggiorno e la cucina si fondono in un ambiente armonioso, pensato per il comfort quotidiano e la convivialità.

La grande metratura al piano terra consente l'eventuale realizzazione di un'ulteriore camera da letto.

La presenza di grandi superfici vetrate consente alla luce naturale di valorizzare ogni dettaglio architettonico.

Sempre al piano terra è presente un comodo bagno finestrato, realizzato con materiali moderni e linee essenziali.

Gli ambienti interni si proiettano all’esterno su un ampio giardino di proprietà, disposto su tre lati, perfetto per vivere momenti di relax all’aria aperta, in un’atmosfera di assoluta privacy.

Una scala interna, elegante e funzionale, conduce al piano superiore, dove si sviluppa la zona notte composta da due camere da letto ben dimensionate, pensate per garantire tranquillità e riposo.

Un secondo bagno, anch’esso finestrato, completa il piano, insieme a un balcone che aggiunge ulteriore valore all’immobile.

A completare la proprietà vi è un ampio box doppio in larghezza, capace di ospitare comodamente due autovetture, con ulteriore spazio per biciclette, attrezzi o zona di deposito.

L’abitazione è dotata di pannelli solari per la produzione di acqua calda sanitaria, caldaia a condensazione con accumulo da 200 litri, predisposizione per impianto di aria condizionata e serramenti in legno doppio vetro , che garantiscono un ottimo isolamento termico e acustico.

Questa residenza rappresenta la soluzione ideale per chi è alla ricerca di una casa moderna, efficiente e pronta da vivere, immersa nel verde e nella tranquillità, senza rinunciare alla comodità dei principali servizi.

Mostra tutto

Nelle vicinanze

Trasporto pubblico Trasporto pubblico
Montello-Gorlago
Montello-Gorlago
2,5 Km
Ricariche auto elettriche Ricariche auto elettriche
Municipio di Trescore Balneario | RESSOLAR
1,3 Km
Scuole Scuole
Scuole
220 m
Scuola Primaria
1,3 Km
Scuole
1,4 Km
Scuola Media
1,4 Km
Scuola Dell'Infanzia Beato Giovanni XXIII
2,8 Km
Farmacia Farmacia
Farmacia Regina Pacis
630 m
Farmacia Poma Della Dr.Ssa Simona Poma & C.
1,7 Km
Farmacia
2,9 Km
Ospedali Ospedali
Ospedali
990 m
Supermercati Supermercati
Supermercati
2,9 Km
Negozi Negozi
Negozi
1,2 Km
Panificio Poloni
2,6 Km
Supermercati Sisa
2,9 Km
Bar Bar
Bar
2,5 Km
Nonsolopane
2,8 Km
Centro del Sorriso
2,9 Km
Bar Tiro a Segno
2,9 Km
astoria
2,9 Km
Ristoranti Ristoranti
Ristoranti
480 m
LoRo&Co
800 m
Molino dei Frati
1,0 Km
Villa Canton
1,7 Km
Ristorante Sette Ponti
2,2 Km
Mostra tutto

Caratteristiche

Rif.:
61095920
Piano:
2 di 2 (Piano su più livelli)
Box:
1
Balconi:
1
Camere da letto:
3
Arredamento:
Assente
Mostra tutto
Prezzo Prezzo
€ 359.000
Rata mutuo Rata mutuo
€ 1.655 / mese
Spese annue Spese annue
€ 0
Proponi il tuo prezzoProponi il tuo prezzo

Classe Energetica

A1
A1
A1
A1
A1
A1
A1
A1
A1
EP globale non rinnovabile:
15.50 kW h/m² anno
EP globale rinnovabile:
15.80 kW h/m² anno
EP invernale del fabbricato:
EP estiva del fabbricato:
Anno di costruzione:
2012
Riscaldamento:
Autonomo
Tipo impianto:
A pavimento
Tipo alimentazione:
Metano

Ti interessa visionare l'immobile?

Fissa un appuntamento  Fissa un appuntamento

Richiedi informazioni

* Questi campi sono obbligatori

Calcola il tuo mutuo

Semplice e senza impegno
Anticipo

( % )
Mutuo

( % )

pochi semplici passi

inserisci i tuoi dati
Questionario completato
Grazie per aver richiesto un appuntamento senza impegno con un nostro Consulente del Credito e Assicurativo.

Hai inserito correttamente tutti i dati necessari e a breve riceverai una e-mail con un link da convalidare per inviare i tuoi dati.
Affiliato
Agenzia Imm.re La Dea Srl
Via Ospedale, 1 24069 Trescore Balneario (BG)

Il nostro staff


  • Giulia Brolis
    Affiliata

  • Chiara Catanzariti
    Collaboratrice

  • Elisa Lorenzi
    Coordinatrice

  • Sofia Montani
    Collaboratrice

  • Irene Pezzali
    Collaboratrice
Via Ospedale, 1 24069 Trescore Balneario (BG)
Zona: Trescore Balneario-Cenate Sotto-Cenate Sopra
Mostra su mappa
Affiliato
Agenzia Imm.re La Dea Srl
Via Ospedale, 1 24069 Trescore Balneario (BG)

2025 Tecnocasa Franchising S.p.A. - P. IVA 08365160152 - Via Monte Bianco 60/A 20089 Rozzano (MI). Ogni agenzia ha un proprio titolare ed è autonoma. Privacy policy | Policy utilizzo | Cookie policy